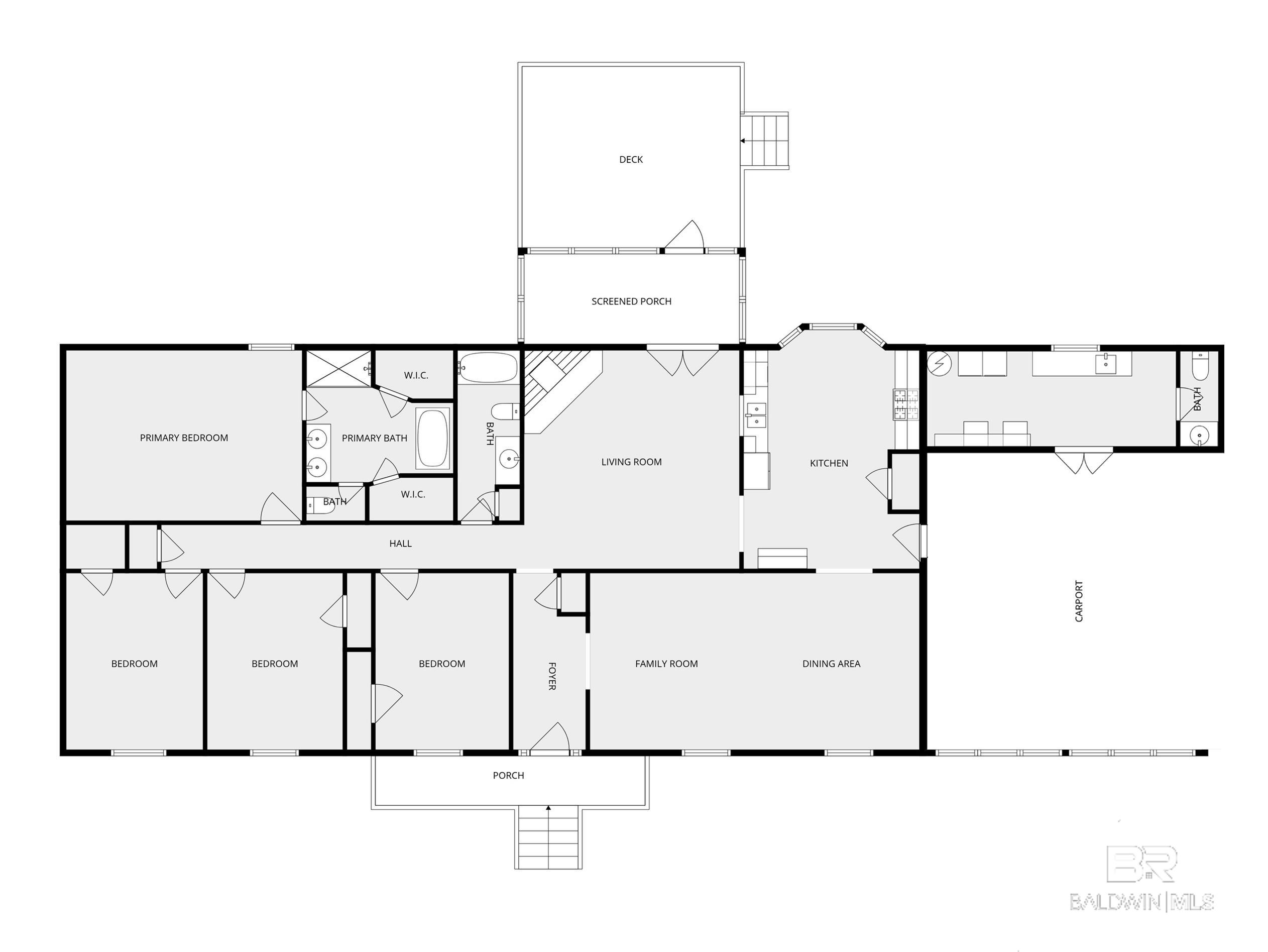
Seller now offering $10,000 in concessions for the buyer to use their way for closing with an acceptable offer. Buyer to verify all information during due diligence.Located at 10590 County Road 32 in Fairhope, this beautifully maintained property offers space, versatility, and peaceful surroundings on approximately 2.5 acres. Combining comfort and functionality, the property presents a unique opportunity for both residential living and potential future uses.The 2,549-square-foot home includes four bedrooms and two and a half bathrooms with a thoughtfully designed layout. Interior features include a formal living and dining area, a spacious family room with fireplace, and a large kitchen with custom cabinetry that provides generous storage and workspace. The primary suite includes a garden tub, separate shower, and walk-in closet.Outdoor spaces enhance the property’s appeal with a screened porch and expansive back deck, creating ideal areas for relaxing or enjoying the surrounding acreage.A standout feature of the property is the 40' x 100' concrete slab equipped with sewer, water, and power hookups, designed to accommodate RV parking or future improvements. With utilities already in place, this space offers flexibility for a workshop, storage structure, or other permitted uses and may present potential income or investment opportunities depending on local regulations.Recent improvements include a FORTIFIED roof installed in 2020, HVAC system and water heater replaced in 2023, and a whole-house generator installed in 2021, adding efficiency and peace of mind.This property offers a combination of acreage, functional improvements, and adaptable space, all within convenient access to the amenities of Fairhope and Baldwin County.Property Highlights4 Bedrooms | 2.5 BathroomsApproximately 2,549 sq ftSituated on about 2.5 acres (two parcels)Screened porch and large rear deckFireplace in family room40' x 100' concrete slab with sewer, water, and power hookups